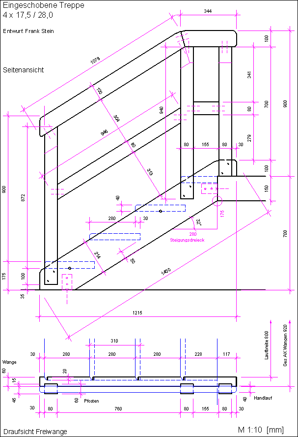
Konstruktion einer geraden, halbgestemmten Treppe. Abb. Eingeschobene Treppe.
Eine solche CAD-Zeichnung könnte mit einem geeigneten CAD/CAM-Programm an eine CNC-Holzbearbeitungs-Maschine übergeben werden. Das CAD/CAM-Programm liest die Koordinaten und übersetzt diese dann in eine standardisierte CNC-Sprache.
Abbildung 1.

(Abb. Eingeschobene Treppe.)
Zurück zum Artikel »Konstruktion einer geraden, halbgestemmten Treppe«.
URL dieses Artikels: http://www.zimmerin.de/zihi/fachberichte/treppenplanung/